常滑市 事業用不動産 売店舗 ロードサイド
物件概要
| 物件番号 | 1898 |
|---|---|
| 物件種類 | 売店舗 |
| 所在地 | 愛知県常滑市住吉町5丁目 |
| 交通 | 名鉄常滑線「西ノ口」駅徒歩6分 |
| 価格 | 1,990万円 |
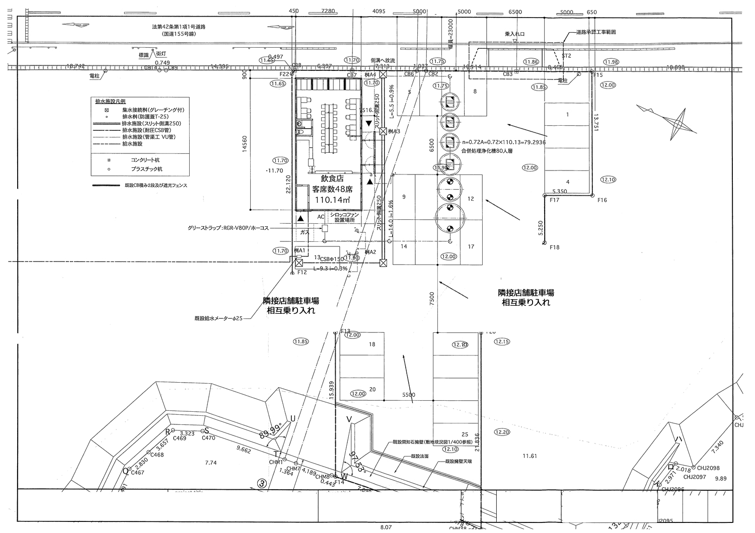
| 土地面積 | 1099.67㎡(332.65坪) |
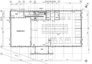
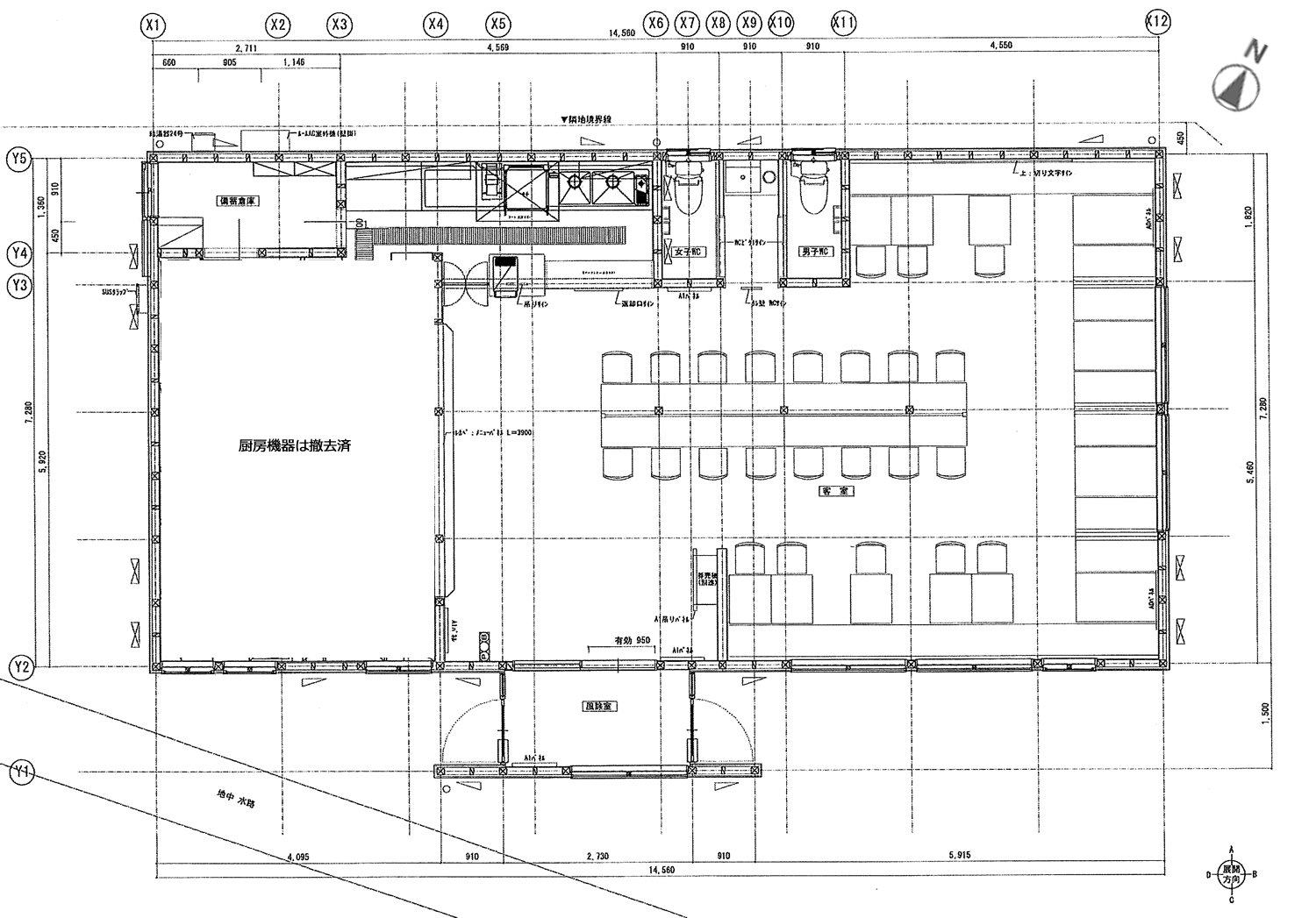
| 建物延面積 | 110.09㎡(33.30坪) |
| 建物構造 | 木造合金メッキ鋼板葺平屋建 |
| 建築年月 | 2019年(令和元年)8月 |
| 都市計画/用途地域 | 市街化調整区域/無指定 |
| 建蔽率/容積率 | 60%/200% |
| 法令制限 | - |
| 駐車場 | 25台 |
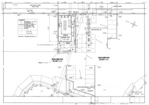
| 道路/間口 | 東側国道幅員約23m/約29m |
| 物件状況 |
空 |
| 取引形態 | 一般媒介 |
| 諸施設 | 電気・プロパンガス・上水道・浄化槽 |
| その他 |
土地は2037年8月まで事業用定期借地権設定契約中(月額賃料267,000円)/飲食店居ぬき物件/隣接店舗に和食ファミレス、カフェ有 |
物件写真
![]() |
![]() |
| 外観 | 店内 |
![]() |
![]() |
| 建物平面図 | 建物配置図 |







