区分事務所 名古屋市東区芳野 セーエービル
物件概要
| 物件番号 | 1899 |
|---|---|
| 物件種類 | 売事務所(区分) |
| 所在地 | 愛知県名古屋市東区芳野1丁目 |
| 交通 | 名鉄名古屋瀬戸線「尼ケ坂」駅徒歩約10分 |
| 価格 | 3,500万円 |
| 専有面積(壁芯) | 294.28㎡(89.01坪) |
| 建物構造 | 鉄骨鉄筋コンクリート造11階建3階部分 |
| 建築年月 | 1974年(昭和49年)1月 |
| 総戸数 | 30戸 |
| 用途地域 | 商業地域・第一種住居地域 |
| 新築時売主 | セーエー開発株式会社 |
| 施工会社 | 株式会社熊谷組 |
| 管理会社 |
ミソノサービス株式会社 |
| 管理形態/管理法式 | 全部委託 |
| 管理費 | 48,000円/月 |
| 修繕積立金 | 64,600円/月 |
| 排水積立金 | 1,000円/月 |
| エレベーター |
有 |
| ペット飼育 | 可(規約有) |
| 取引形態 | 一般媒介 |
| 諸施設 | 電気・都市ガス・上下水道 |
| その他 |
リフォーム済(男女別トイレ、洗面、ビルトインエアコン等5年ほど前にスケルトンからリフォーム実施) |
物件写真
![]() |
![]() |
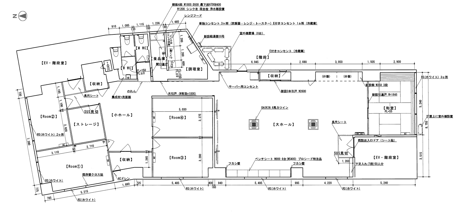
| 間取り図 | 室内 |
![]() |
![]() |
| 男女別トイレ | 室内 |







